Kayo Elevators

Home Lift Hydraulic

Home Lift Hydraulic

Experience a smooth and jerk-free ride with our advanced Soft Start & Stop technology. At Kayo Elevator, we lead the Indian home lift market by offering solutions that require just a minimal 300mm pit, no overhead space, and run efficiently on a single-phase power supply.

With Kayo Elevator’s home lift solutions, you can turn your vision into reality. Our elevators are designed to meet universal design standards and come with a wide range of distinctive styles and innovative features. We deliver residential lifts that enhance everyday living and elevate comfort within your home. Each elevator is thoughtfully engineered to provide a seamless and premium experience.

Features

Single phase and Three phase option available

Pit minimum required 300mm

Overhead minimum required 2800mm

Car Travel maximum 15 Metre

Speed maximum 0.4 to 0.5 MPS

Customized option for Car shades, Handrails, False Ceiling and Flooring available

Customized product

In case of power failure an automatic control device brings the car back to the landing and allows the exit the passengers.

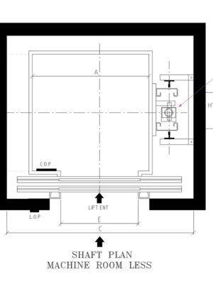
Size Chart

LOAD
CAR INSIDE
ELEVATOR WELL
ENT
PERSONS
KG
WIDTH – A
DEPTH – B
WIDTH – C
DEPTH – D
E
4
272
1100
700
1550
1400
700
5
340
1100
800
1550
1500
700
6
408
1200
900
1650
1600
700
8
544
1400
1000
1850
1700
800
10
680
1500
1100
2000
1800
900

TOP VIEW

SIDE VIEW

SIDE VIEW